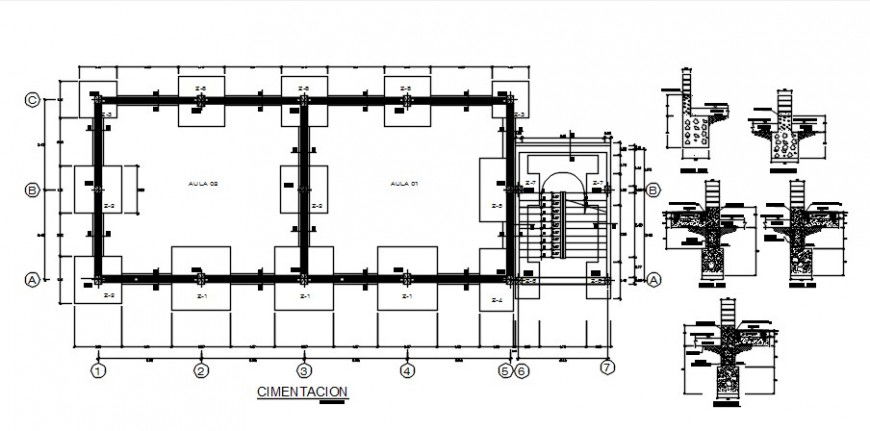
Foundation plan details with flooring structure details in autocad file
Description
Foundation plan details with flooring structure details in autocad file that shows concrete masonry details along with reinforcement details in tension and compression zone with main and distribution bars detials and the structure is a reinforced concrete cement (RCC) structure.
Uploaded by:
Eiz
Luna

